Arrowhead at Blue
A Spacious 5-Bedroom Retreat with Mountain Views
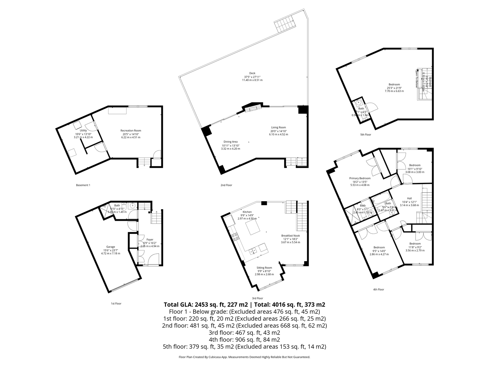
Welcome to Arrowhead at Blue, where stunning mountain views, year-round recreation, and modern comfort come together in this spacious 5-bedroom, 4-bath freehold townhome. With over 2,750 sq. ft. of finished living space and an expansive 37' x 27' composite deck with ski-hill views, this home is designed for gathering, relaxing, and embracing the four-season lifestyle that Blue Mountain is known for.PROPERTY FEATURES
-
5 bedrooms + lower-level recreation room
-
3 full bathrooms + 1 powder room
-
Approx. 2,750 sq. ft. of finished living space
-
37' x 27' composite deck with breathtaking mountain views
Primary suite with heated floors ensuite, mountain vies and walk-in closet
-
Single-car garage with EV charger
-
Guest parking
-
Freehold ownership with a common elements fee
-
Triple-pane south-facing windows & doors
RECENT UPDATES & IMPROVEMENTS
Exterior & Structural
-
Steel roof (2023)
-
Composite deck, stairs & metal railing (2021)
-
Deck skirting (2025)
-
All south-facing windows replaced with triple-pane; added second patio slider (2024)
-
Garage & front door painted (2025)
Interior & Mechanical
-
New furnace, heat pump/air conditioner, humidfier, & tankless water heater (2024)
-
Under-cabinet lighting was added in the kitchen
-
Pot lights upgraded to LED, many with dimmers
-
Recessed lighting added in the kitchen, great room & basement
-
Updated bedroom light fixtures (2024)
-
New comfort-height toilets (2024)
-
Window blinds replaced with dual light-filtering/blackout blinds on bedroom and loft levels (2024)
-
Interior paint throughout (2017) + touch-ups (2025)
APPLIANCES
Electric stove, refrigerator (est. 10 yrs), bar fridge, dishwasher (2022), microwave, stacked washer/dryer.
UTILITIES (Annual Approx.)
Hydro One: $1,679 (2025) | Water/Sewer: $657 (2024) | Enbridge Gas: $781 (2025)
COMMUNITY SERVICES (Common Elements Fee $287.80/mo)
-
Lawn & garden maintenance
-
Snow removal (road & driveway)
-
Garbage & recycling removal
-
Visitor parking
-
Rogers high-speed internet & cable TV










































